
DET-ADU-0002-ARCH
972 SF Detached ADU - Architectural set of plans
$299.00
Project Description:
This ADU combines contemporary design with practical features, making it a perfect addition to any property. The exterior finishes of the building are designed to create a striking and modern aesthetic. The walls showcase a stylish board and batten design, finished in a bold black color that provides a dramatic contrast. The roof features durable standing seam metal, enhancing both the structure's longevity and its visual appeal. The doors and windows are framed in classic white, adding a touch of brightness and elegance to the dark exterior. Additionally, wooden pergolas in a natural wood color provide a warm and inviting element, softening the overall look while offering functional outdoor spaces. This combination of finishes harmonizes modern materials with traditional design elements, resulting in a cohesive and attractive exterior.
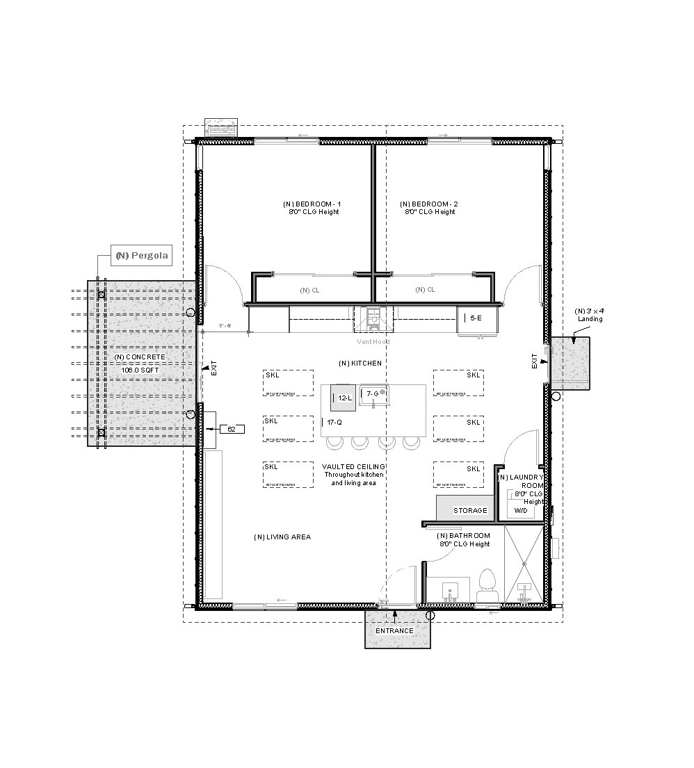
2 Bedrooms: Featuring two well-appointed bedrooms, each equipped with spacious closets, the layout promotes a seamless flow between areas.
Kitchen, Living and dining area: The open-concept kitchen is perfect for entertaining, seamlessly connecting to the living and dining area, which boasts a stunning vaulted ceiling and skylights that flood the space with natural light.
1 Bathroom: The thoughtfully designed bathroom caters to residents' needs,
Pergola area: while the outdoor pergola area provides a tranquil spot for relaxation or outdoor gatherings. Ideal for guests or as a private retreat.
Floor Plan(s): Detailed floor plans with clear dimensions, window and door schedules, Keynote, Project legend and the locations of plumbing fixtures to make your build as smooth as possible.
Construction Plan and Proposed reflected ceiling: Detailed floor plans with clear dimensions to make your build as smooth as possible.
Exterior Elevations: These show you what your home will look like from the front, back, and sides, including all the details of the exterior finishes.
Building Cross Section: A detailed slice through the building that shows how everything fits together vertically.
Roof Plan: Includes the layout of the roof framing, roof pitch, attic venting, overhangs, and materials for the roof finish, making sure everything above you is just right.
Details and Notes: Extra drawings and notes that give you an inside look at foundation details, typical wall sections, floor framing, and more—helping you visualize all the important parts.
Site Plan:
Our set of plans does not include a site plan, as every property is unique. If you need help creating a site plan, we may be able to assist for an additional cost. However, please note that some cities require a survey plan or a topographic plan, which we do not provide. For these, you’ll need to contact a specialist who can meet your city's specific requirements.
Feel free to reach out if you need guidance!
Cover sheet and 3D renderings: General notes, building codes, and exterior and interiors 3D renderings.
Electrical Layout Plan: A helpful guide showing where all the lights, switches, outlets, and electrical panels should go.
Foundation and Framing Plan: This covers all the essentials, including footing sizes, slab thickness, and the layout of the floor framing—everything you need to get started on a solid foundation.
Architectural or Engineering Stamp: The plans do not come with a licensed architect or engineer’s stamp, which may be needed depending on local building codes.
Mechanical Drawings: HVAC details like duct sizes and locations are not included but can be provided by your HVAC subcontractor.
Plumbing Drawings: Specific plumbing layouts, such as pipe sizes and locations, aren’t included and are typically provided by your plumbing subcontractor.
Energy Calculations: Every home is unique, so energy efficiency calculations should be done by a local energy consultant to ensure compliance with local regulations.
Store Policies:
This is a digital product, meaning nothing will be physically shipped. When you purchase, you’ll receive a PDF file of the plans that you can print anytime, as many times as you like. The plans are formatted to print at a 1/4" = 1' scale on 24" x 36" paper. Elevations and sections are formatted to print at a 3/8" = 1' scale on 24" x 36" paper. We highly recommend using a plotter to print out the full set of plans, please use high quality settings.
Please note, the plans are for informational purposes only and do not include engineering or architectural stamps. Before starting any construction, we highly recommend consulting a licensed builder, contractor, or architect who understands your local building codes to ensure everything is up to standard.
Because building codes and climate conditions vary widely, we do not include plumbing, heating, or air conditioning drawings. These can be easily provided by your contractor or local professionals.
Your purchase includes a one-time build license, meaning the plans can be used for one project only. Building multiple homes from the same plan purchase is not allowed.
Please keep in mind: Since this is a digital product, all sales are final. Unfortunately, we cannot offer returns, exchanges, or cancellations once the files are delivered.
Thank you for your understanding, and we’re excited to be a part of your home-building journey!